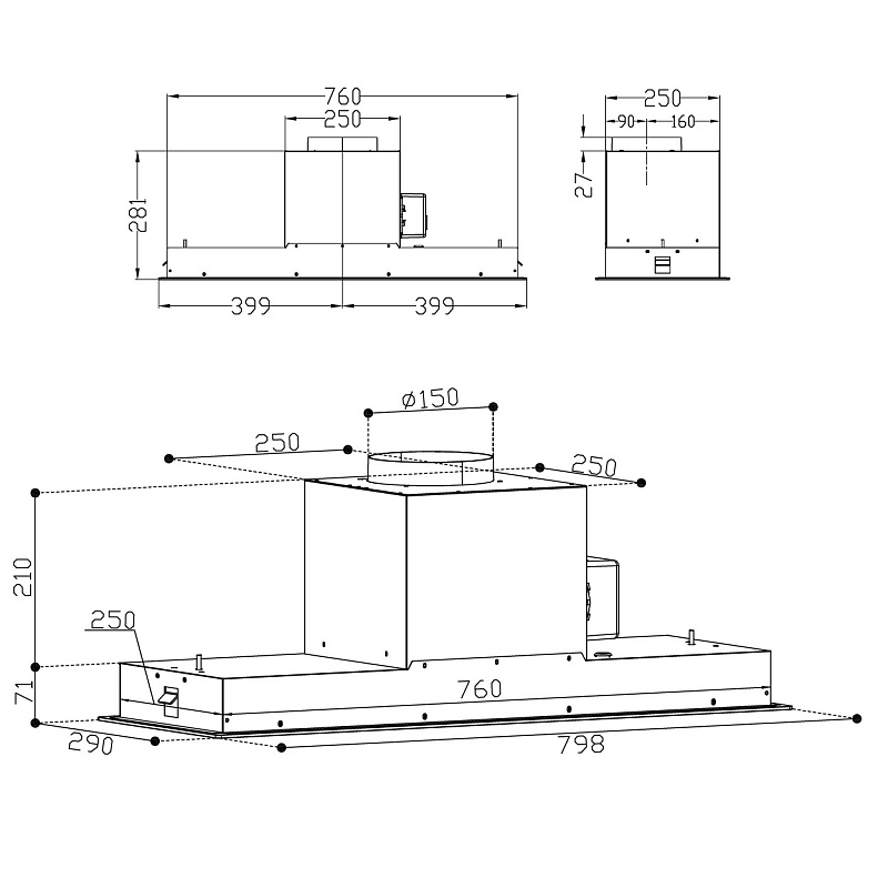
Схема встраивания для кухонной вытяжки Korting KHI 9099 ICGN