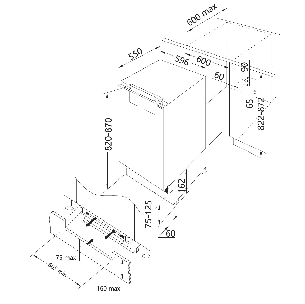
Схема встраивания для холодильника Korting KSI 8159